Kimoto Rooftop Beer Garden
Visual Identity, Architecture, Website
Identity and architecture for New York’s first Asian rooftop beer garden in Downtown Brooklyn
Rethinking the Asian Restaurant
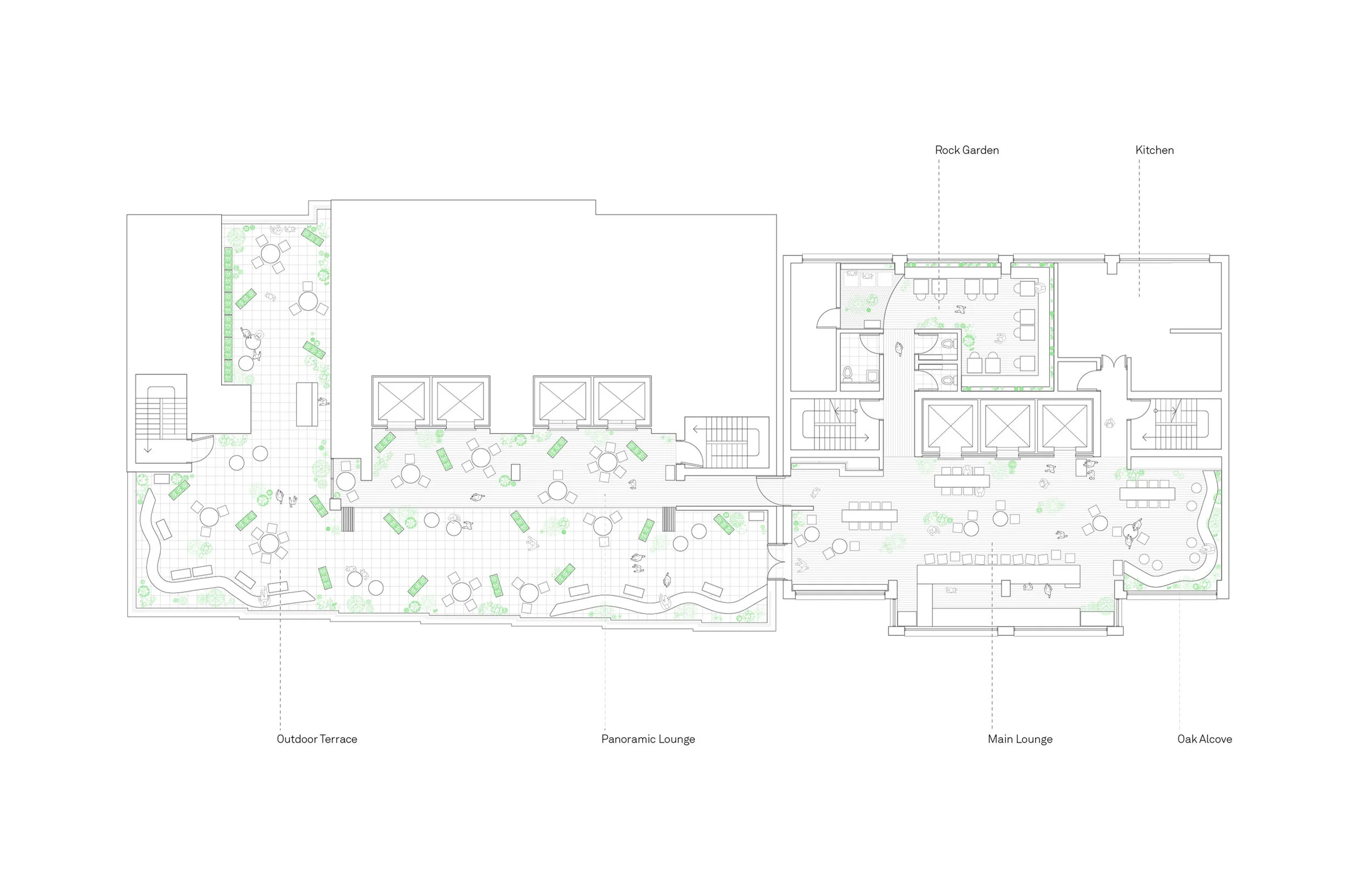
Situated above the Sheraton and Aloft Hotels in Downtown Brooklyn, Kimoto is New York’s first Asian rooftop beer garden. We wanted to challenge stereotypes associated with the Asian restaurant and to create a casual setting where people could be themselves. We applied this thinking across a 4000 ft. interior space and outdoor terrace with 300 pieces of custom furniture, zen-style plants, and a flexible arrangement of space. The visual identity uses light-hearted typography and illustrations to evoke a friendly, welcoming environment.
Working on a New York schedule
We had four months from the time the lease was signed to the opening that Fall. Weather and cost both necessitated an expedited design and construction process. Once the key concept was agreed upon, we began issuing demolition drawings and a detailed construction sequence timeline, even as design details were finalized. We assigned staff full-time on speccing materials, negotiating pricing with vendors, coordinating permits with the Architect of Record, and construction administration. Meanwhile, we worked to design all custom furniture and a new visual identity and website.
